Automotive Pressurized Crossdraft Paint Booths - Chicago Il.
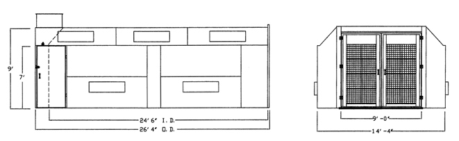
Standard Features - Dimensions: 26' Deep x 14' Wide x 9' Tall - Control Panel with Programmable Paint and Cure Cycles - V-Bank 4 Filter Pre-Filter System with 2" Cleanable Filters and Automatic Discharge Damper - Full Airflow Cure / Bake Cycle ( Optimum Performance for Solvent and / or Water Base ) - 1.62 Million BTU Burner with a 125 Degree Temperature Rise - Nut and Bolt Air Tight 18 Gauge Galvanized Steel Construction - 14,000 C.F.M. Exhaust System with 5 H.P. Variable Frequency Drive for Exhaust Fan - Meets N.F.P.A. / N.E.C. / O.S.H.A. / B.O.C.A. / I.M.C. / I.F.C. / I.B.C. / U.B.C. / U.F.C. / U.M.C.
Crossdraft paint booths intake fresh air through the filtered front doors of the booth or through a bridge style intake chamber located in the front of the booth. of booth above the product doors. The clean filtered air is drawn through the booth and exhausted through a filter system at the other end. This type of spray booth makes efficient use of shop space and is available in solid back, drive through, and reverse flow designs. Reverse flow paint booths intake air through filters in the back wall. The solid doors are at the exhaust end of the booth. This provides cleaner intake filtration and better control of shop dust. Chicago Il. Crossdraft Paint Booths - Crossdraft Paint Systems - Crossdraft Painting Supplies |
